店舗も多い宝町エリアにある、3階建の店舗事務所兼中古住宅!
2~3階の住居部分には30帖以上のLDK・屋上付き!
けやき通り・国道248号・19号へのアクセス良好!
ドラッグストア・コンビニなど周辺施設も充実!
| 種 別 | 販 売 価 格 | 販 売 状 況 |
| 中古 | 6,800万円 (税込) | ○ |
現地写真
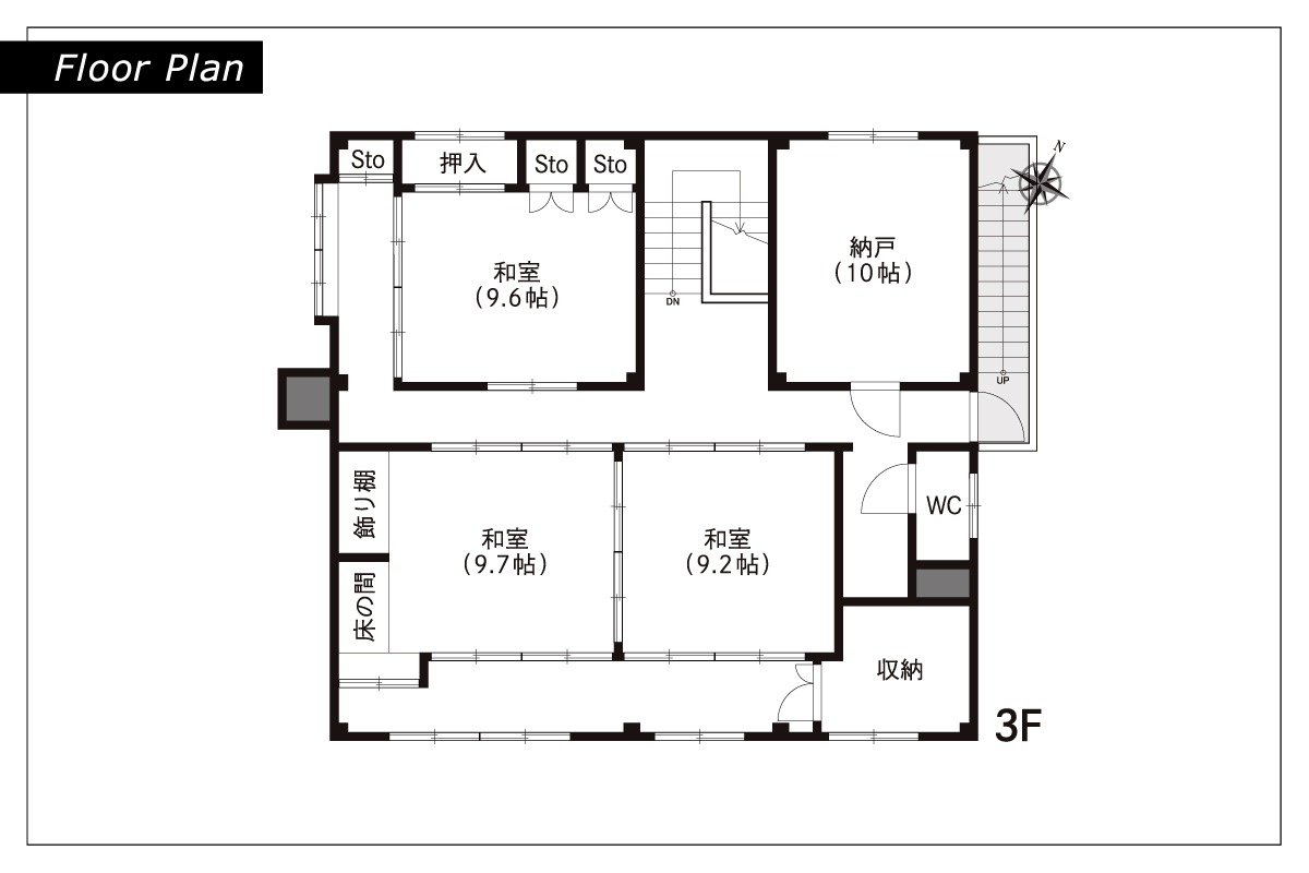
間取図
特徴
■ 南向きのバルコニー(屋根付部分有)
■ くつろぎの畳空間
■ 二間つづきの和室は1部屋として広々と使用可能
■ 南向きの広縁スペース
物件概要
| 販 売 価 格 | 6,800万円 (税込) |
| 土 地 面 積 | 465㎡ (140.66坪) |
| 建 物 面 積 | 366.38㎡ (110.82坪) 〔1F:108.20㎡ / 2F:129.09㎡ / 3F:129.09㎡ 〕 |
| 構 造 階 数 | 鉄骨造3階建 |
| 駐 車 場 | 9台 (※車種による) |
| 所 在 地 |
| 多治見市宝町2丁目49番1 MAP |
| 交 通 |
| JR中央本線「多治見」駅 徒歩約15分(約1,200m) |
| 学 区 |
| 小泉小学校 徒歩約29分(約2,290m) 小泉中学校 徒歩約28分(約2,200m) |
| 周 辺 環 境 |
| クスリのアオキ 宝町店 徒歩約2分(約100m) ファミリーマート多治見太平町五丁目店 徒歩約5分(約400m) スーパーマーケットバロー多治見店 徒歩約9分(約650m) Seria 多治見店 徒歩約5分(約350m) ゲンキー 多治見西店 徒歩約8分(約600m) |
物件の所在地
設備
| 設 備 | オール電化 ・キッチン / IHクッキングヒーター(3口) / カップボード ・洗面化粧台 / 浴槽 / トイレ3ヶ所 ・フローリング / 畳 / 収納 / 押入 / 床の間 / 飾り棚 / 出窓 / 照明器具 / 外部物置 / 屋上 |
物件詳細
- 所在地 / 岐阜県多治見市宝町2丁目49番1
- 最寄駅 / JR中央本線「多治見」駅
- 学区 / 小泉小学校・小泉中学校
- 販売戸数 / 1戸
- 土地面積 / 465㎡ (140.66坪)
- 建物面積 / 366.38㎡ (110.82坪)〔1F:108.20㎡ / 2F:129.09㎡ / 3F:129.09㎡ 〕
- 築年月 / 昭和57年10月(築43年)
- 地目 / 雑種地(現況:宅地)
- 都市計画 / 市街化区域
- 用途地域 / 第1種住居地域
- 建ぺい率 / 60%
- 容積率 / 200%
- 接道状況 / 南西側の公道(幅員約6.8m)に約11.6m接面する
- 設備 / 公営水道・公共下水・中部電力
- その他の制限:法22条区域・景観法・盛土規制法・都市再生特別措置法
- 土地権利 / 所有権
- 現況 / 空家
- 入居可能時期 / 即入居可(残代金精算後)
- 取引形態 / 売主















